- 5 Longcot Drive
Last sold: Mar 2018

Pictures
Map
5 Longcot Drive, Rolleston, Selwyn
Last sold Mar 2018
Property insights
OneRoof estimate
OneRoof mentions
This property was last sold in 2018 for $514,000. OneRoof now estimates this property to be $755,000 and its latest rating valuation by Selwyn council is $740,000 as of 2024. There are 281 properties for sale nearby. More property estimates in Rolleston are available.
Similar properties for sale
Property data
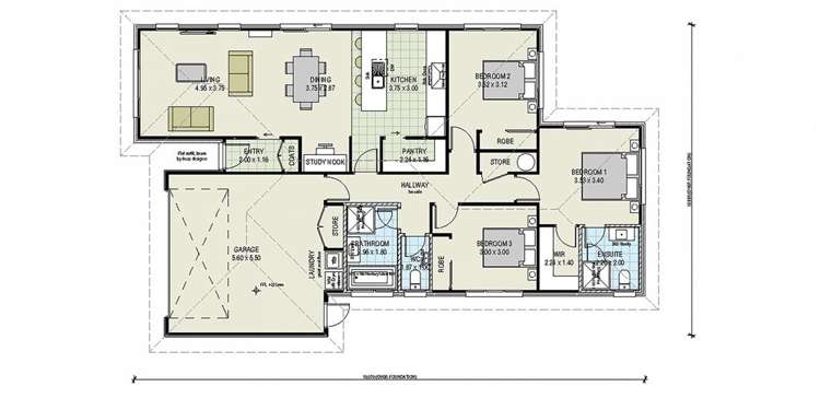
Floor Area
161m²
Land Area
429m²
Decade Built
2010s
Title
Freehold
ADVERTISEMENT
Get a free, no obligation appraisal from our top agents today
About the area
Market insights
Insights for all bedroom homes in Rolleston
Property type
All property types
Bedrooms
All
Time (yrs)
5 yrs
Home services
Fortnightly Repayments
Loan term
Total interest
Interest rate
Total cost
Press calculate to work out your mortgage repayments and how quickly you can pay off your loan.


On your side with these great benefits
Natural disaster cover for earthquakes, natural landslips, hydrothermal activity, tsunami, natural fires, & volcanic activity.
Temporary accommodation for you, your family, and your pets if you need to be evacuated from your home.
Get replacement keys and locks if yours get lost or stolen and pay no excess.
Access to AMI HomeHub, our first-class home repairer that brings together a team of experts to take care of your home claim repairs from start to finish.
Learn about these great benefits and more
*Exclusions and limitations apply. Talk to us about these or refer to the full policy document which can be found on our website.

Rolleston, Selwyn
Rolleston is a suburb which lies within the Territorial Authority of Selwyn, one of 31 residential suburbs which form the wider region. Rolleston is the largest suburb of Selwyn in terms of the total number of residential housing stock.
Rolleston provides a range of housing stock, with the earliest residential housing recorded in the area constructed between 1900 - 1909. The majority of the residential housing stock in the locality was constructed between 2010 - 2019.
Residential housing stock in Rolleston is made up of approximately 86% residential housing and 13% lifestyle properties.
Learn moreADVERTISEMENT














