- 41 Royal Terrace


+26
Pictures
Map
41 Royal Terrace, Dunedin Central, Dunedin City
Property insights
OneRoof estimate
OneRoof mentions
This property was last sold in 2017 for $770,000. OneRoof now estimates this property to be $1,000,000 and its latest rating valuation by Dunedin City council is $1,100,000 as of 2025. There are 38 properties for sale nearby. More property estimates in Dunedin Central are available.
Property data
Broadband available
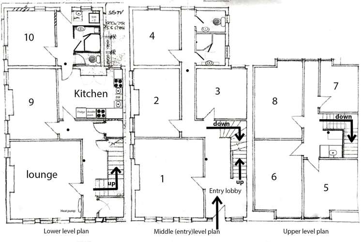
Floor area
305m²
Land area
258m²
Type of title
Freehold
ADVERTISEMENT
About the area
Market insights
Insights for all bedroom homes in Dunedin Central
Property type
All property types
Bedrooms
All
Time (yrs)
5 yrs
Home services
Fortnightly Repayments
Loan term
Total interest
Interest rate
Total cost
Press calculate to work out your mortgage repayments and how quickly you can pay off your loan.


On your side with these great benefits
Natural disaster cover for earthquakes, natural landslips, hydrothermal activity, tsunami, natural fires, & volcanic activity.
Temporary accommodation for you, your family, and your pets if you need to be evacuated from your home.
Get replacement keys and locks if yours get lost or stolen and pay no excess.
Access to AMI HomeHub, our first-class home repairer that brings together a team of experts to take care of your home claim repairs from start to finish.
Learn about these great benefits and more
*Exclusions and limitations apply. Talk to us about these or refer to the full policy document which can be found on our website.

Dunedin Central, Dunedin City
Dunedin Central is a suburb which lies within the Territorial Authority of Dunedin, one of 97 residential suburbs which form the wider region. Dunedin Central is the 3rd largest suburb of Dunedin in terms of the total number of residential housing stock.
Dunedin Central provides a range of housing stock, with the earliest residential housing recorded in the area constructed between 1880 - 1889. The majority of the residential housing stock in the locality was constructed between 1900 - 1909.
Residential housing stock in Dunedin Central is made up of approximately 78% residential housing and 22% residential investment housing properties.
Learn moreADVERTISEMENT




























