- 38 Truby King Drive
Last sold: Aug 2022


+24
Pictures
Map
38 Truby King Drive, Karitane, Dunedin City
Last sold Aug 2022
Property insights
OneRoof estimate
OneRoof mentions
This property was last sold in 2022. OneRoof now estimates this property to be $595,000 and its latest rating valuation by Dunedin City council is $590,000 as of 2025. There are 10 properties for sale nearby. More property estimates in Karitane are available.
Similar properties for sale
Property data
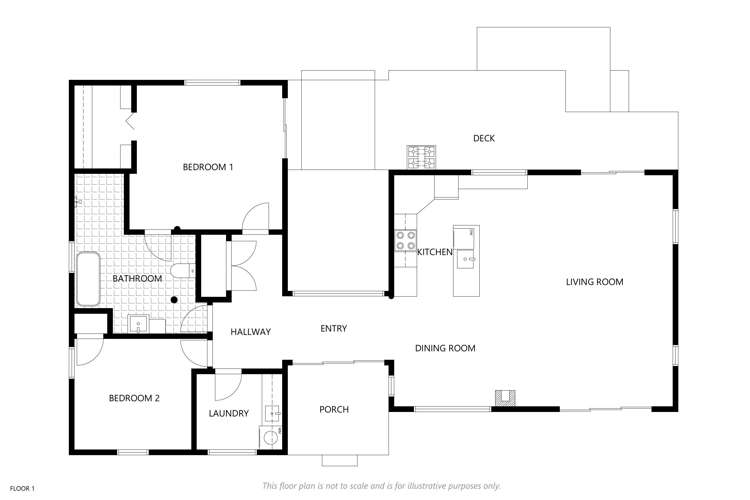
Floor Area
147m²
Land Area
3,409m²
Decade Built
2010s
Title
Freehold
ADVERTISEMENT
About the area
Market insights
Insights for all bedroom homes in Karitane
Property type
All property types
Bedrooms
All
Time (yrs)
5 yrs
Home services
Fortnightly Repayments
Loan term
Total interest
Interest rate
Total cost
Press calculate to work out your mortgage repayments and how quickly you can pay off your loan.


On your side with these great benefits
Natural disaster cover for earthquakes, natural landslips, hydrothermal activity, tsunami, natural fires, & volcanic activity.
Temporary accommodation for you, your family, and your pets if you need to be evacuated from your home.
Get replacement keys and locks if yours get lost or stolen and pay no excess.
Access to AMI HomeHub, our first-class home repairer that brings together a team of experts to take care of your home claim repairs from start to finish.
Learn about these great benefits and more
*Exclusions and limitations apply. Talk to us about these or refer to the full policy document which can be found on our website.

Karitane, Dunedin City
Karitane is a suburb which lies within the Territorial Authority of Dunedin, one of 97 residential suburbs which form the wider region. Karitane is the 33rd largest suburb of Dunedin in terms of the total number of residential housing stock.
Karitane provides a range of housing stock, with the earliest residential housing recorded in the area constructed between 1880 - 1889. The majority of the residential housing stock in the locality was constructed between 1950 - 1959.
Residential housing stock in Karitane is made up of approximately 93% residential housing and 7% lifestyle properties.
Learn moreADVERTISEMENT


































