- 35 Taitua Road
Last sold: Jul 2016


+23
Pictures
Map
35 Taitua Road, Temple View, Hamilton City
Last sold Jul 2016
Property insights
OneRoof estimate
OneRoof mentions
This property was last sold in 2016 for $742,700. OneRoof now estimates this property to be $1,245,000 and its latest rating valuation by Hamilton City council is $1,200,000 as of 2023. There are 9 properties for sale nearby. More property estimates in Temple View are available.
Similar properties for sale
Property data
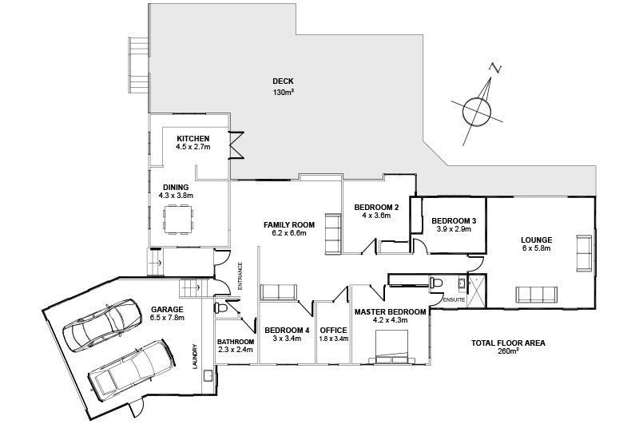
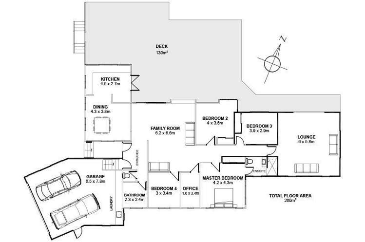
Floor Area
272m²
Land Area
7,043m²
Decade Built
1940s
Title
Freehold
ADVERTISEMENT
About the area
Market insights
Insights for all bedroom homes in Temple View
Property type
All property types
Bedrooms
All
Time (yrs)
5 yrs
Home services
Fortnightly Repayments
Loan term
Total interest
Interest rate
Total cost
Press calculate to work out your mortgage repayments and how quickly you can pay off your loan.


On your side with these great benefits
Natural disaster cover for earthquakes, natural landslips, hydrothermal activity, tsunami, natural fires, & volcanic activity.
Temporary accommodation for you, your family, and your pets if you need to be evacuated from your home.
Get replacement keys and locks if yours get lost or stolen and pay no excess.
Access to AMI HomeHub, our first-class home repairer that brings together a team of experts to take care of your home claim repairs from start to finish.
Learn about these great benefits and more
*Exclusions and limitations apply. Talk to us about these or refer to the full policy document which can be found on our website.

Temple View, Hamilton City
Temple View is a suburb which lies within the Territorial Authority of Hamilton, one of 51 residential suburbs which form the wider region. Temple View is the 34th largest suburb of Hamilton in terms of the total number of residential housing stock.
Temple View provides a range of housing stock, with the earliest residential housing recorded in the area constructed between 1920 - 1929. The majority of the residential housing stock in the locality was constructed between 1970 - 1979.
Residential housing stock in Temple View is made up of approximately 77% residential housing , 7% residential investment housing and 16% lifestyle properties.
Learn moreADVERTISEMENT































