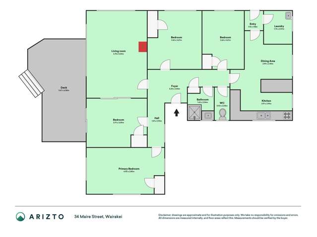
- 34 Maire Street

Floorplan

+25
Pictures25
Floorplan1
Map
Video & 3D tour1
Data
Property insights
OneRoof estimate
OneRoof mentions
Listed for sale on OneRoof for 10 days (last updated on 6 December) and was last sold in 2019 for $348,000. OneRoof now estimates this property to be $610,000 and its latest rating valuation by Taupō council is $625,000 as of 2022. There are 2 3-bedroom properties for sale nearby. There are 12 properties for sale in Wairakei.
Property data
Broadband available
Floor area
115m²
Land area
956m²
Type of title
Freehold
About the area
Market insights
Insights for all bedroom homes in Wairakei
Property type
All property types
Bedrooms
All
Time (yrs)
5 yrs
Home services
Fortnightly Repayments
Loan term
Total interest
Interest rate
Total cost
Press calculate to work out your mortgage repayments and how quickly you can pay off your loan.


On your side with these great benefits
Natural disaster cover for earthquakes, natural landslips, hydrothermal activity, tsunami, natural fires, & volcanic activity.
Temporary accommodation for you, your family, and your pets if you need to be evacuated from your home.
Get replacement keys and locks if yours get lost or stolen and pay no excess.
Access to AMI HomeHub, our first-class home repairer that brings together a team of experts to take care of your home claim repairs from start to finish.
Learn about these great benefits and more
*Exclusions and limitations apply. Talk to us about these or refer to the full policy document which can be found on our website.

Wairakei and Surrounds, Taupō
Wairakei And Surrounds is a suburb which lies within the Territorial Authority of Taupo, one of 32 residential suburbs which form the wider region. Wairakei And Surrounds is the 15th largest suburb of Taupo in terms of the total number of residential housing stock.
Wairakei And Surrounds provides a range of housing stock, with the earliest residential housing recorded in the area constructed between 1910 - 1919. The majority of the residential housing stock in the locality was constructed between 1960 - 1969.
Residential housing stock in Wairakei And Surrounds is made up of approximately 33% residential housing and 67% lifestyle properties.
Learn moreADVERTISEMENT



























