- 34 Antrim Street
Last sold: Mar 2017


+5
Pictures
Map
34 Antrim Street, Windsor, Invercargill City
Last sold Mar 2017
Property insights
Rating valuation
OneRoof mentions
This property was last sold in 2017 for $345,000. Its latest rating valuation by Invercargill City council is $580,000 as of 2023. There are 18 properties for sale nearby. More property estimates in Windsor are available.
Property data
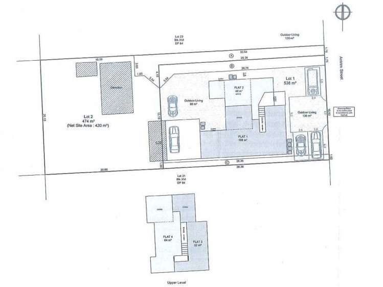
Floor Area
360m²
Land Area
536m²
Decade Built
1930s
Title
Freehold
ADVERTISEMENT
Get a free, no obligation appraisal from our top agents today
About the area
Market insights
Insights for all bedroom homes in Windsor
Property type
All property types
Bedrooms
All
Time (yrs)
5 yrs
Home services
Fortnightly Repayments
Loan term
Total interest
Interest rate
Total cost
Press calculate to work out your mortgage repayments and how quickly you can pay off your loan.


On your side with these great benefits
Natural disaster cover for earthquakes, natural landslips, hydrothermal activity, tsunami, natural fires, & volcanic activity.
Temporary accommodation for you, your family, and your pets if you need to be evacuated from your home.
Get replacement keys and locks if yours get lost or stolen and pay no excess.
Access to AMI HomeHub, our first-class home repairer that brings together a team of experts to take care of your home claim repairs from start to finish.
Learn about these great benefits and more
*Exclusions and limitations apply. Talk to us about these or refer to the full policy document which can be found on our website.

Windsor, Invercargill City
Windsor is a suburb which lies within the Territorial Authority of Invercargill, one of 36 residential suburbs which form the wider region. Windsor is the largest suburb of Invercargill in terms of the total number of residential housing stock.
Windsor provides a range of housing stock, with the earliest residential housing recorded in the area constructed between 1900 - 1909. The majority of the residential housing stock in the locality was constructed between 1970 - 1979.
Residential housing stock in Windsor is made up of approximately 99% residential housing and 1% residential investment housing properties.
Learn moreADVERTISEMENT







