- 17/4 Stables Lane
Last sold: Oct 2020


+26
Pictures
Map
17/4 Stables Lane, Silverdale, Rodney
Last sold Oct 2020
Property insights
OneRoof estimate
OneRoof mentions
This property was last sold in 2020 for $792,500. OneRoof now estimates this property to be $930,000 and its latest rating valuation by Rodney council is $960,000 as of 2024. There are 84 properties for sale nearby. More property estimates in Silverdale are available.
Similar properties for sale
Property data
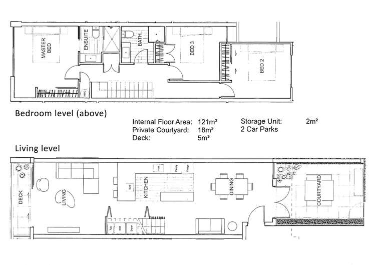
Floor Area
121m²
Decade Built
2010s
Title
Unit Title
Title Number
779886
ADVERTISEMENT
Get a free, no obligation appraisal from our top agents today
About the area
Market insights
Insights for all bedroom homes in Silverdale
Property type
All property types
Bedrooms
All
Time (yrs)
5 yrs
Home services
Fortnightly Repayments
Loan term
Total interest
Interest rate
Total cost
Press calculate to work out your mortgage repayments and how quickly you can pay off your loan.


On your side with these great benefits
Natural disaster cover for earthquakes, natural landslips, hydrothermal activity, tsunami, natural fires, & volcanic activity.
Temporary accommodation for you, your family, and your pets if you need to be evacuated from your home.
Get replacement keys and locks if yours get lost or stolen and pay no excess.
Access to AMI HomeHub, our first-class home repairer that brings together a team of experts to take care of your home claim repairs from start to finish.
Learn about these great benefits and more
*Exclusions and limitations apply. Talk to us about these or refer to the full policy document which can be found on our website.

Silverdale, Rodney
Silverdale is a suburb which lies within the Territorial Authority of Auckland, one of 269 residential suburbs which form the wider region. Silverdale is the 66th largest suburb of Auckland in terms of the total number of residential housing stock.
Silverdale provides a range of housing stock, with the earliest residential housing recorded in the area constructed between 1930 - 1939. The majority of the residential housing stock in the locality was constructed between 2010 - 2019.
Residential housing stock in Silverdale is made up of primarily standard residential housing property types with a small proportion of purpose built residential rental housing and lifestyle properties.
Learn moreADVERTISEMENT








































