- 1 Quail Close
Last sold: Dec 2021


+23
Pictures
Map
1 Quail Close, Alexandra, Central Otago
Last sold Dec 2021
Property insights
OneRoof estimate
OneRoof mentions
This property was last sold in 2021. OneRoof now estimates this property to be $1,035,000 and its latest rating valuation by Central Otago council is $910,000 as of 2022. There are 134 properties for sale nearby. More property estimates in Alexandra are available.
Similar properties for sale
Property data
Type of title
Freehold
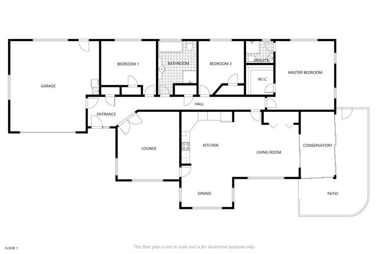
Floor area
195m²
Land area
613m²
Decade of Built
2000s
ADVERTISEMENT
About the area
Market insights
Insights for all bedroom homes in Alexandra
Property type
All property types
Bedrooms
All
Time (yrs)
5 yrs
Home services
Fortnightly Repayments
Loan term
Total interest
Interest rate
Total cost
Press calculate to work out your mortgage repayments and how quickly you can pay off your loan.


On your side with these great benefits
Natural disaster cover for earthquakes, natural landslips, hydrothermal activity, tsunami, natural fires, & volcanic activity.
Temporary accommodation for you, your family, and your pets if you need to be evacuated from your home.
Get replacement keys and locks if yours get lost or stolen and pay no excess.
Access to AMI HomeHub, our first-class home repairer that brings together a team of experts to take care of your home claim repairs from start to finish.
Learn about these great benefits and more
*Exclusions and limitations apply. Talk to us about these or refer to the full policy document which can be found on our website.

Alexandra, Central Otago
Alexandra is a suburb which lies within the Territorial Authority of Otago, one of 23 residential suburbs which form the wider region. Alexandra is the largest suburb of Otago in terms of the total number of residential housing stock.
Alexandra provides a range of housing stock, with the earliest residential housing recorded in the area constructed between 1900 - 1909. The majority of the residential housing stock in the locality was constructed between 1970 - 1979.
Residential housing stock in Alexandra is made up of approximately 74% residential housing , 2% residential investment housing and 25% lifestyle properties.
Learn moreADVERTISEMENT




































